Индивидуальное
магазиностроение
Свяжитесь с нами
Сергей Коротков>
Сергей Коротков

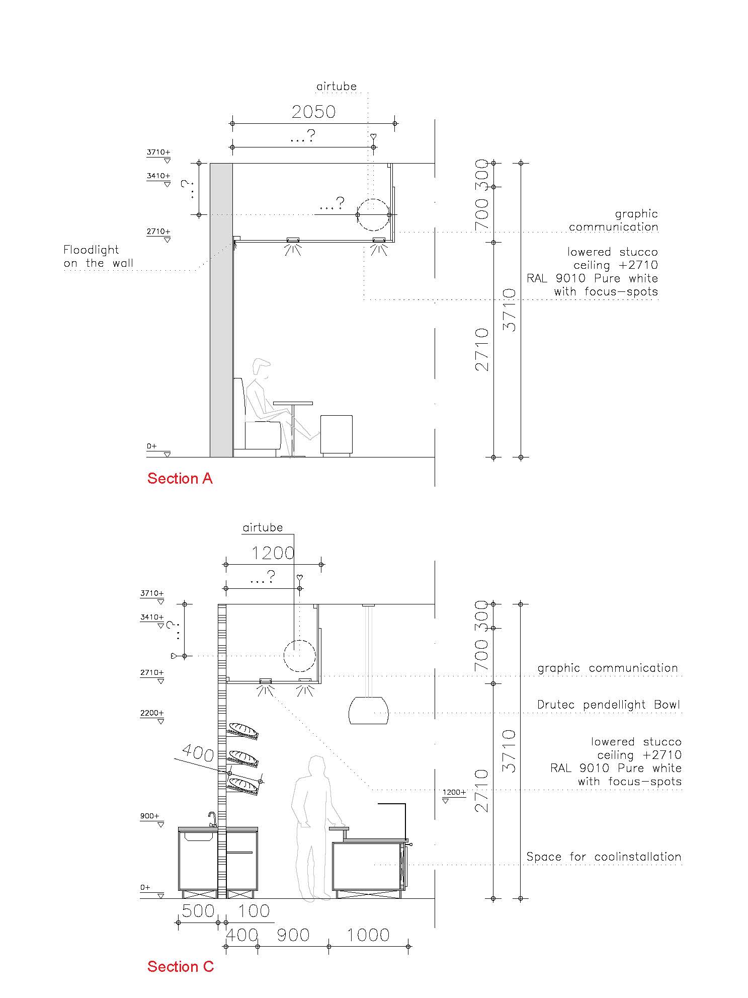
Königsbäcker-Запускаем новый проект в Калининграде

2012
Эта точка — самая первая и до сих пор воспринимается горожанами как «визитная карточка» сети: в публикациях Königsbäcker называют городской легендой и гастро-точкой притяжения.

Наше участие в проекте - торговое оборудование и мебель, а также освещение: мы поставили и смонтировали ключевые позиции, от которых зависят и внешний вид витрины, и удобство работы персонала.

Что получает гость - Витринная “картинка”: аккуратная и понятная выкладка, ассортимент читается с первого взгляда и выглядел максимально аппетитно.

Качество и надёжность: решения под ежедневную нагрузку флагманской точки (поток, пики, постоянная работа в течение дня).

Удобство для продавца: рабочее место и логика операций (выкладка/допродажи/выдача) — чтобы обслуживать быстро и без лишних движений, даже когда высокий спрос.

Итог для заказчика - получил дополнительные конкурентные преимущества за счёт нашего участия: первоклассный внешний вид кафе, устойчивую работу оборудования и комфортную эргономику рабочих мест - то, что напрямую влияет на скорость и качество обслуживания, а значит и на повторные визиты.
Ещё события
Кафе "МОНЭ" 2013

Уютное кафе в центре города Подробнее

Кафе "МОНЭ"
Konigsbacker_express 2019

К началу курортного сезона в Зеленоградске на побережье Балтийского моря Konigsbacker открыл при нашем непосредственном участии 30-ю по счету пекарню, которая будет функционировать в непривычном для сети формате экспресс-кафе, что подразумевает комфортное самообслуживание клиентов. Подробнее

Konigsbacker_express
Сеть булочных магазинов "Чудо Мельница" 2005

В Саратове открылась обновлённая булочная «Чудо Мельница» — это современное гастрономическое пространство с красивым интерьером, выполненным в тёплых оттенках и современном оборудовании. Подробнее

Сеть булочных магазинов "Чудо Мельница"
2025 Проект Кафе-СУПЕРМАРКЕТ 2025

Выполнен проект супермаркета площадью более 600м2 торговой площади. Акцент расставлен на специализированные отделы и КАФЕ с собственной продукцией. Подробнее

2025 Проект Кафе-СУПЕРМАРКЕТ
Кафе МОРОЖЕНОЕ г.Пятигорск 2023

Город-курорт Пятигорск ул. Козлова. Открытие в ноябре 2023г. Подробнее

Кафе МОРОЖЕНОЕ г.Пятигорск
Супермаркеты "Азбука Вкуса" 2007

В 6-и супермаркетах представлено оборудование для кулинарии, фруктовых островов и пекарни Подробнее

Супермаркеты "Азбука Вкуса"
Кулинария г.Курган 2023

Курган пр. Конституции открыто в апреле 2023 года. Кафе-кулинария. Подробнее

 Кулинария г.Курган
Modern Bakery Moscow 2019 2019

В этом году наш стенд был оформлен в виде рабочей модели кафе, которое объединило в себе: уютный дизайн в винтажно-провинциальном стиле от компании.... 
Подробнее

Modern Bakery Moscow 2019
Оформление сети кафе «КРУАССАН» 2012

В Калининграде продолжается развитие сети кафе-магазинов «Круассан».
Расширяя географию своих заведений, компания стремится занять наиболее перспективные точки продаж, тем самым делая их ближе для своих посетителей. Подробнее

Оформление сети кафе «КРУАССАН»
DEBATON кафе-пекарня Уфа 2019

Концепция кафе-пекарни Debaton фокусируется на приготовлении сытных и здоровых
завтраков, разнообразных десертов, а также выпечке более 40 сортов хлеба и хлебобулочных
изделий. Подробнее

DEBATON кафе-пекарня Уфа